NC gerechte Bemaßung
NC gerechte Bemaßung, auch Koordinatenbemaßung, dient vor allem der Fertigung an numerisch gesteuerten Werkzeugmaschinen.
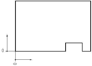
- Der Nullpunkt ist dabei der Schnittpunkt der Koordinatenachsen, die für ein Werkstück festgelegt werden.
- Der Beginn der Maßlinie wird durch einen schwarzen Punkt gekennzeichnet.
- Je nach Werkstück können Koordinatenachsen von Symmetrieachsen (Fertigungsverfahren Drehen) oder Körperflächen (Drehen/Fräsen) ausgehen.
Koordinatenachsen am Werkstück (Drehen)
Koordinatenachsen am Werkstück (Rechteckkontur)
Absolutbemaßung (G90)
Diese Bemaßung wird auch als Bezugsbemaßung bezeichnet, da sich alle Maße auf den Nullpunkt beziehen.
Bei steigender Bemaßung (Punkt, Pfeil, Pfeil, ...) haben die Koordinatenmaße einen Pfeil auf der gemeinsamen Maßlinie.
- Maßzahlen für senkrechte Maßlinien müssen von unten und für waagerechte Maßlinien von rechts lesbar eingetragen werden.
- Liegen Maße sehr eng beeinander, so kann die Maßhilfslinie weiter herausgezogen und mit einer eigenen Maßlinie versehen werden, die nicht bis zum Koordinatennullpunkt reicht.
Beispiel für eine Absolutbemaßung
Inkremtentalbemaßung (G91)
Diese Bemaßung wird auch als Zuwachsbemaßung bezeichnet, da sich das nachfolgende Maß immer auf dem Abstand zum vorhergehenden Maß bezieht.
Alle Maße werden auf Maßketten zusammengefaßt, die um das Werkstück angeordnet sind.
- Der Nullpunkt wandert von Maß zu Maß.
- Bei kleinen Maßen wird der Maßpfeil zum Punkt.
- Die Kettenmaße sind aufgrund der hohen Arbeitsgenauigkeit der numerisch gesteuerten Werkzeugmaschinen möglich.
Beispiel für eine inkremtentale Bemaßung